×
Ready to launch your project? Contact us!! →
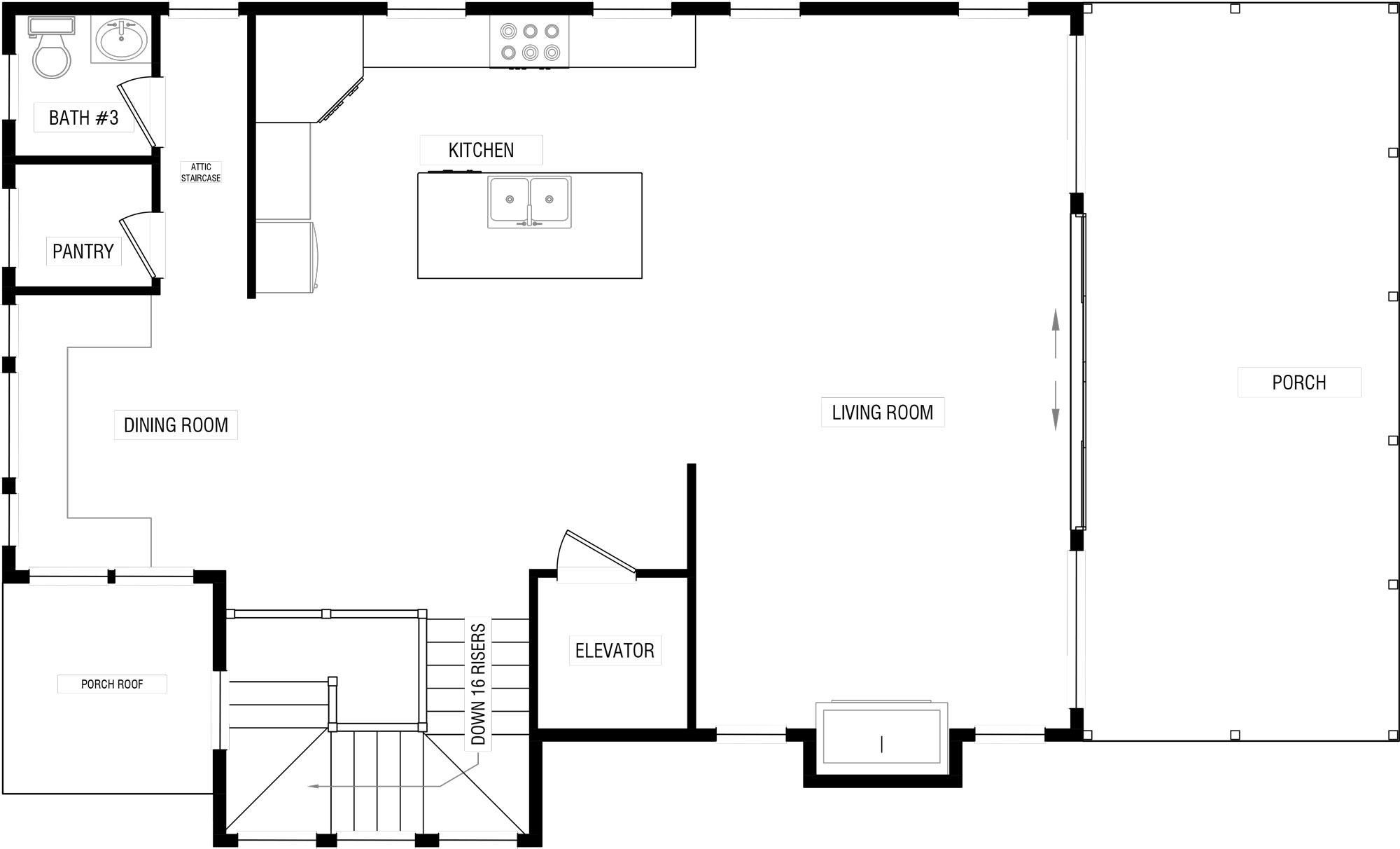
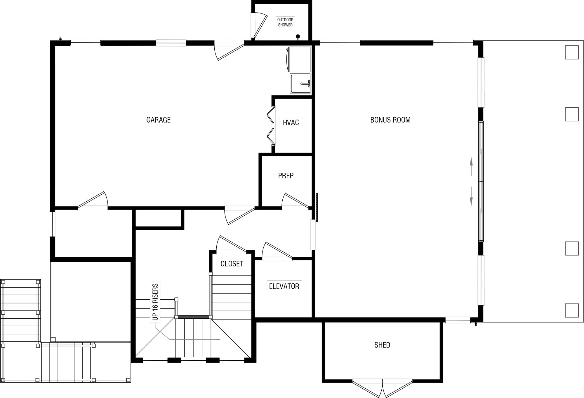
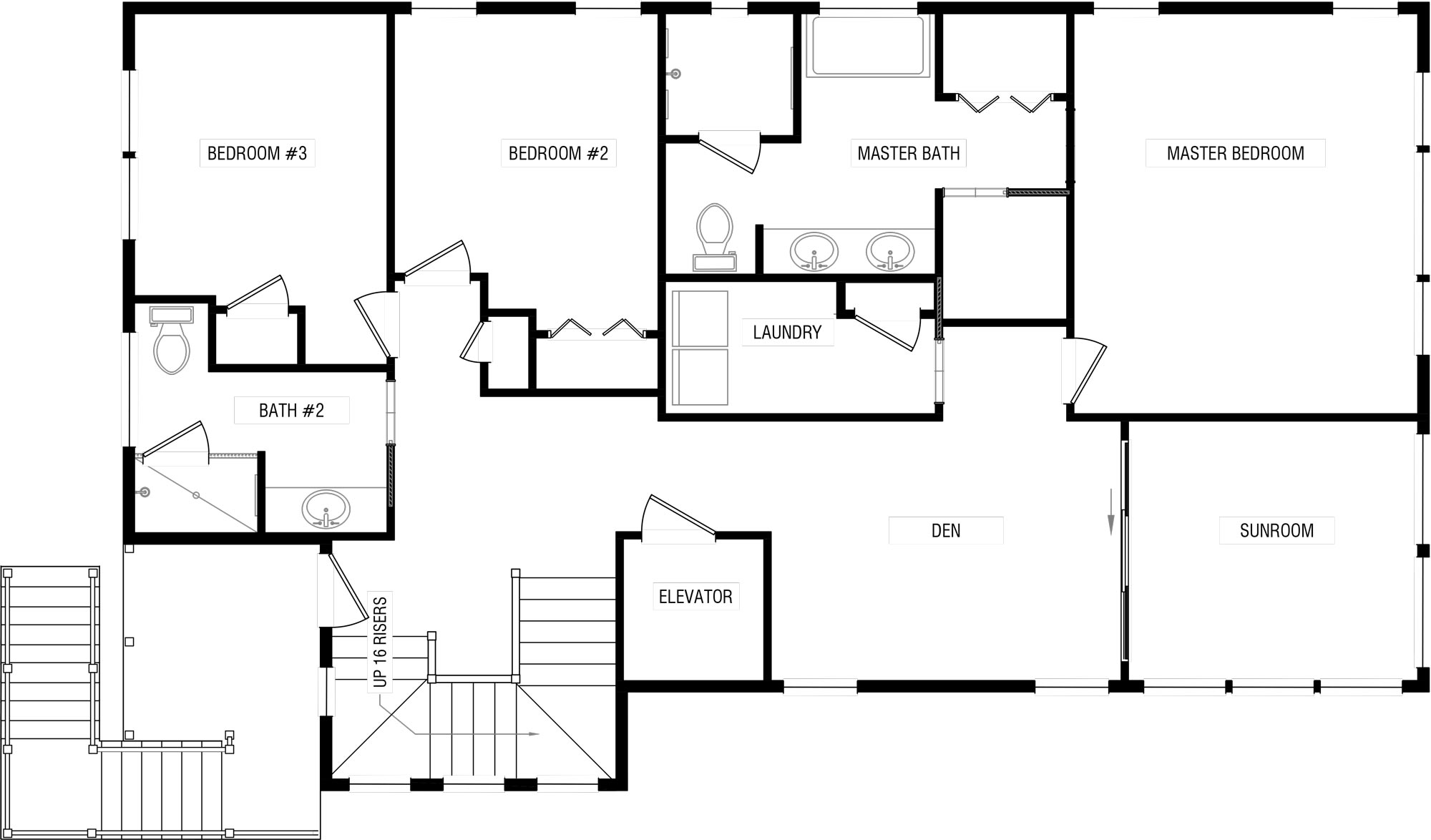
Lucky Dog Creekside
- Bedrooms:
- 3
- Bathrooms:
- 2.5
- Lot Placement:
- Waterfront
- Community:
- Swann Keys
- Details:
- Three story open floor plan home with three bedrooms, garage, elevator, cathedral deck
©2026 Resort Homes, LLC