×
Ready to launch your project? Contact us!! →
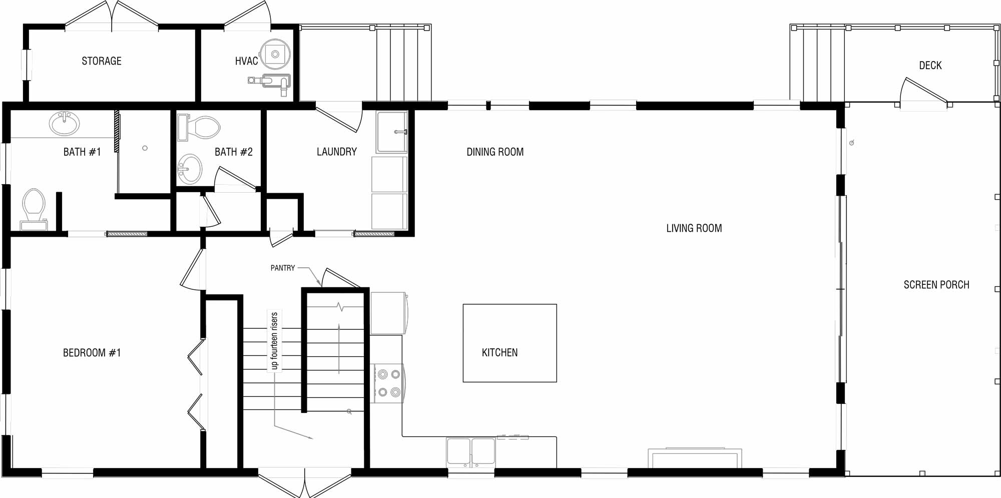
Pine Tree
- Bedrooms:
- 3
- Bathrooms:
- 2.5
- Lot Placement:
- Interior
- Community:
- Montego Bay
- Details:
- Refined two story, three bedroom home with cathedral ceilings and full-width screened in porch
©2026 Resort Homes, LLC